新闻动态

您所在的位置:首页 » 新闻动态
新州政府优先发展区,悉尼西南重镇Minto 6栋联排别墅出售仅从$75万起!【维多利亚花园】 Victoria Garden, Minto
点击数:2900    发布时间:2018-11-22



【维多利亚花园】

  Victoria Garden, MINTO


新州政府优先发展区,悉尼西南重镇Minto 6栋联排别墅出售,$75万


1.地段

Minto 位于新州政府在悉尼的两大优先发展区之一的Glenfield-Macarthur走廊的中心,并被规划为教育和医疗产业发展区,距离悉尼CBD约 50公里,可乘悉尼地铁8号线即机场线直达悉尼市中心。


2交通

距离Minto火车站约1700米,步行约23分钟。


乘火车约50分钟抵达Central, 开车约13分钟可达地铁2号线、5号线、8号线三线交汇的枢纽站Glenfield,方便抵达悉尼各区。


3购物

距MintoMarketplace大型购物中心仅1000米左右,内有Woolworth、Kmart、Best&Less等大型连锁超市,并有超过60家商铺,还有银行,邮局与医疗中心等设施。


向南3站即到新一代超大型购物中心Macarthur Square,拥有超过300家商店,还有美食街、电影院、露天广场等多种设施。

4教育

对面就是Parklands Childcare Centre幼儿园,隔壁就是Campbellfield   Public School小学,开车约9分钟到精英中学MacquarieFields High School,约13分钟到另一所精英中学Hurlstone Agricultural High School(该校 2012年在NSW几百所中学中排名第11位,堪称是精英中的精英),对有小孩的家庭极为方便。

由Minto火车站,乘车十几分钟即到西悉尼大学Campbelltown校区和医学院。



5医疗

Minto的商业区有家庭医疗诊所,而坐车或开车十几分钟可到Campbelltown公立和私立医院。

6环境

附近有众多休闲娱乐设施,包括公园、游乐园、高尔夫球场、滑板场、游船码头、烧烤台等




开车十几分钟可达幽静的小沙滩Simmo’s Beach


7未来发展

按照2030城市规划,将重点发展东部、中部、西部三大都会区和就业中心,其中悉尼西南区将增加8万个就业岗位。

包括GlenfieldMintoCampbelltown地区总面积312平方公里、现有人口17万、工作岗位近5万。预计到2036年,人口将超过27万,并发展成悉尼的健康和教育产业中心 (Campbelltown Health and Education Precinct, Nexus Business Park)


8规划设计方案(DA)-土地划分

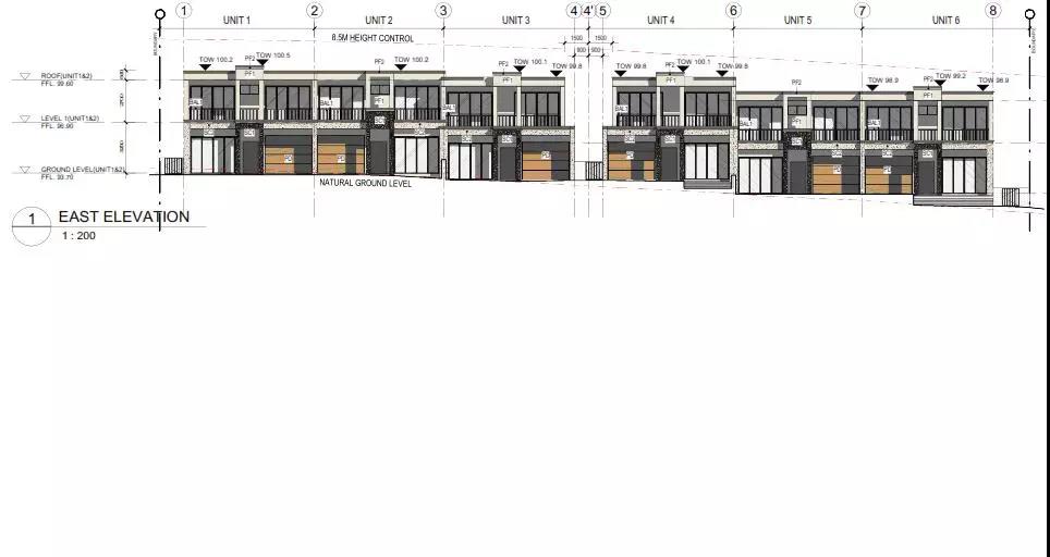
正立面图

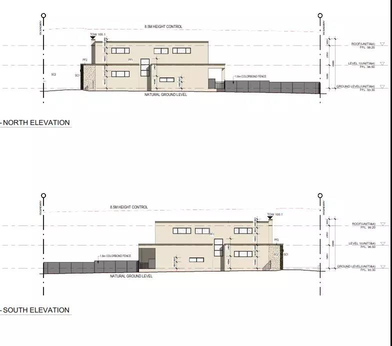
后立面图

侧面图

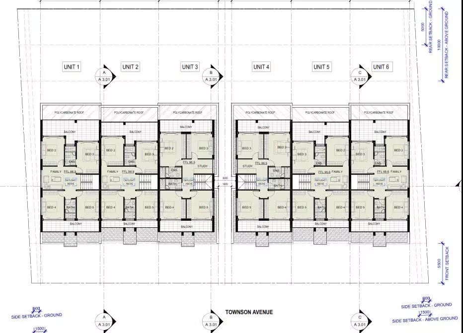
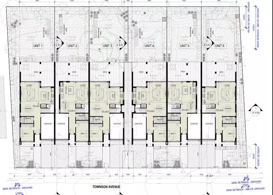
一层平面图

二层平面图

屋顶平面图

户型1

卧室:5  卫生间:3   车库:1

户型2

卧室:5  卫生间:车库:1

户型3

卧室:5  卫生间:车库:1

9项目概括

项目名称: 维多利亚花园I期 Victoria Garden, Minto

房产类型:Torrens Title Terraces

项目地址:87 Townson Ave, Minto

各项距离:

  • Campbellfield Public School: 25 metres

  • Parklands     Childcare Centre: 70 metres

  • Waranwarin     Early Childhood and Family Centre: 250 metres

  • Minto     Marketplace: 1000 metres

  • Minto Train     Station: 1700 metres

  • Macquarie Fields      High School: 6 kilometres

  • Hurlstone Agricultural      School: 11 kilometres

  • Sydney CBD: 50 kilometres

 

总土地面积:2087 sqm

每户土地面积:

1.     Unit 1: 398.38 sqm

2.     Unit 2: 309.33 sqm

3.     Unit 3: 348.52 sqm

4.     Unit 4: 348.52 sqm

5.     Unit 5: 309.33 sqm

6.     Unit 6: 376.54 sqm

总建筑面积:943 sqm

每户使用面积:

1.     户型1:158.47(使用面积)+19.41(车库面积)+38.98(二层阳台)+37.64(露台)+5.03(门廊)=259.53平米

2.     户型2:154.58(使用面积)+19.41(车库面积)+37.48(二层阳台)+37.20(露台)+4.90(门廊)=253.57平米

3.     户型3:158.47(使用面积)+18.00(车库面积)+33.78(二层阳台)+35.98(露台)+4.90(门廊)=251.13平米

以上数据仅供参考,准确数据需查看施工图

价格:$75万起

开发商:Ausa Group Australia Pty Ltd

建筑商:Innovation Homes Group Pty Ltd

土地交割时间:2018年6月22日

预计完工时间:2020年2月底


10建筑商

建筑商InnovationHomes Group Pty Ltd(IHG)创新住宅集团是在有19年建筑施工经验的Sydney Structural Pty Ltd的基础上,获得澳洲本地基金公司和海外投资人的投资,组建的综合性建筑企业,专注于以富有创新的施工工艺、建筑材料、智能化住房设备,更好、更快的建造住宅。

本项目创新住宅集团将以每平米$1500的优惠价格完成交钥匙工程。

                                                                        上图片是Minto附近,2017年底完工的400平米大宅,工期8个月


预售已经开始欢迎预定!

预售已经开始欢迎预定!

预售已经开始欢迎预定!

 

资深顾问

如对该项目感兴趣,欢迎扫描以下二维码添加我们或拨打咨询热线:TEL:(852)35832323;96753731;13726862822.,专人一对一为您解答。



標準-外海(澳洲)投資部

长按关注公众号,  

开创您海外美好生活!

【尊贵热线:13726862822

地址:香港九龍旺角彌敦道 678 號華僑商業中心 15C.

Tel: TEL:(852)35832323;96753731;13726862822

心動不如行動




 咨询顾问-陈
 咨询顾问-宋